730 N Franklin Suite 301, Chicago, IL 60654
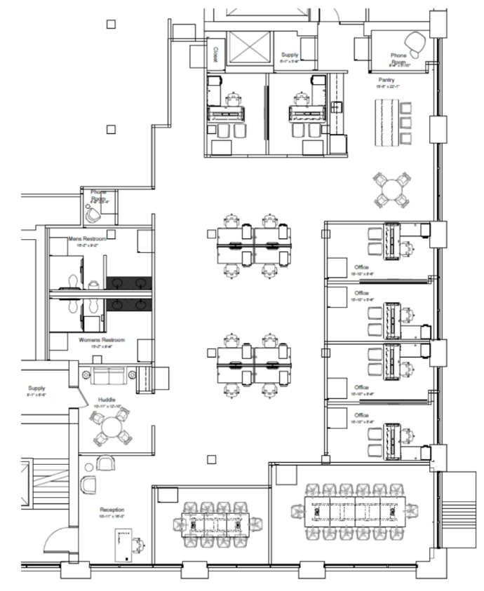
4,761sf fully-furnished office sublease at 730 N Franklin, Suite 301 (available within 30 days). This newly built-out Brick and Timber space features 6 private offices, 8 workstations, a reception area, kitchen, and ample meeting space: a 14-person conference room, a 10-person conference room, one huddle room, and two phone rooms. Lease expires 10/31/30.
Space Features & Amenities
Office Sublease Space Available
4,761sf
Lease Expires: 10/31/30
Available within 30 days
Brick and Timber, newly built out space
Fully Furnished
6 Offices
14-person conference room
10-person conference room
1 huddle room
2 phone rooms
8 workstations





